近頃は大型スピーカーを使う人はめっきり減ってしまって、30cm以上のサイズのユニットを使った製品は絶滅したも同然である。一方で京大桂キャンパスで開催された金田式アンプ試聴会で、レイ・オ−ディオのKM-1Vが音研の大型システムを一蹴した如く、小型スピーカーは次々と新しいユニットが開発され、その進化は驚くべきものであるらしい。それと大掛かりなシステムがちょいと面倒になったということもあって、小型スピーカーを誂えることにした。
一応の製作方針は
- 2way
- ドーム型ツイ−タ−+5インチウーファ−の組み合わせ
- エンクロジャ−の幅は狭く、前面の両サイドはR処理
- 奥行きで内容量を稼ぐ
使用ユニットは、低音がある程度出て比較的新しいものを探して SB Acoustics SB12NRX25-4 / SEAS CA12RCYの2機種に絞った。そしてツイ−タ−は同じメーカ−の SB Acoustics SB29RDC-C000-4 / Seas 22TFFとして、ミクセルとコイズミ無線に発注した。
箱はMDFの18mm厚としてストーリオに発注。発注した板材情報は下記(2014年12月当時)で図面と共に注文
「木材 No.1」 品代小計 ¥3460- (単価:¥1730×注文数:2)
-
-
-
-
-
-
-
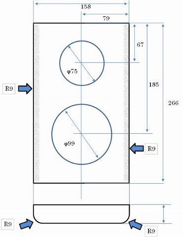
- 板木材:MDF(18mm), 266×158mm, φ75×1 φ99×1 R9×2
-
-
-
-
-
-
「木材 No.2」 品代小計 ¥1312- (単価:¥656×注文数:2)
-
-
-
-
-
-
-
- 板木材:MDF(18mm), 229×120mm, φ40×1
-
-
-
-
-
-
「木材 No.3」 品代小計 ¥1632- (単価:¥408×注文数:4)
-
-
-
-
-
-
-
- 板木材:MDF(18mm), 265×235mm, 加工なし
-
-
-
-
-
-
「木材 No.4」 品代小計 ¥1600- (単価:¥400×注文数:4)
-
-
-
-
-
-
-
- 板木材:MDF(18mm), 235×120mm, 加工なし
-
-
-
-
-
-




